Teilen

2-Zimmer-Wohnung mit WBS bis 140

Adresse:
Marius-Carpentier-Straße 16,
13587 Berlin, Hakenfelde

Warmmiete
462,00 €
Wohnfläche
42,0 m²
Zimmer
2
Bezugsfrei
ab sofort

WBS erforderlich!

Für diese Wohnung wird ein Wohnberechtigungsschein (WBS) benötigt. Mehr dazu erfahren Sie auf unserer Service-Seite.

Mehr zum WBS

Merkmale

  • WBS erforderlich
  • Bad mit Dusche
  • offene Küche
  • Fußbodenheizung
  • Zentralheizung
  • Aufzug
  • KabelTV-Anschluss
  • barrierefrei

Objektdetails

Bezugsfrei ab: ab sofort
Etage: 4
Etagenzahl: 6
Zimmer: 2
Fläche: 42,0 m²
Wi-Nr.: 14539.150

Mietkosten

Kaltmiete: 294,00 €
Nebenkosten: 168,00 €
Warmmiete: 462,00 €
Kaution: 882,00 €

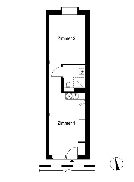
Grundriss

Zimmer: ca. 18,1 m²
Zimmer: ca. 15,3 m²
Küche: ca. 1,0 m²
Flur: ca. 2,9 m²
Bad: ca. 4,5 m²

Energiekennzahlen

Baujahr: 2026
Energieausweistyp: Bedarfsausweis
Heizungsart: keine Angabe
Energiebedarf: 16,00 kWh/m²a
Letzte Sanierung: keine Angabe
Energieeffizienzklasse: A+
Heizmedium: Wärmepumpe

Energieverbrauchskennwert des Gebäudes: 16,00 kWh/m²a
Energieeffizienzklasse: A+

Objektbeschreibung

Zur Wohnung

Im Grundriss wird das Mobiliar exemplarisch dargestellt. Flächenangaben können abweichen.

Lage

Adresse

Marius-Carpentier-Straße 16, 13587 Berlin, Hakenfelde

Entfernung berechnen

Berechnen Sie Distanzen zur Arbeit, zur Kita zu den Freunden einfach mit Google Maps. *

Zu Google Maps
Umgebung erkunden

Erkunden Sie die Nachbarschaft vorab mit Google Street View. *

Zu Google Street View
* Die HOWOGE übernimmt keine Garantie für die Verfügbarkeit oder Richtigkeit der Darstellung.

Provisionsfrei mieten – fair und transparent zum Mietvertrag

Als Mieter:in zahlen Sie für die Vermittlung des Mietvertrags keine Provision – eine Gebühr fällt nur an, wenn Sie selbst eine Wohnungsvermittlung beauftragt haben. Zugleich ist uns wichtig, dass sich alle Interessent:innen von Anfang an gut informiert und fair behandelt fühlen; deshalb gestalten wir unseren Vermietungsprozess klar, transparent und Schritt für Schritt nachvollziehbar.

Geld & Geschenke Wir nehmen kein Geld und Geschenke von Wohnungsinteressenten an. Solche Bestechungsversuche können zum Ausschluss von der Wohnungsvergabe führen.

Kontaktaufnahme Kontakt zu Ihnen nehmen wir ausschließlich via E-Mail, Telefon oder über unsere App "HOWOGE Wohnungssuche" auf. Niemals per WhatsApp oder anderen Messenger-Diensten.

Besichtigungsverbot Käuflich erworbene Besichtigungstermine werden vor Ort nicht zugelassen.

Alle Schritte im Überblick

Kontaktieren Sie uns!

Besichtigung anfragen
Kontaktieren Sie uns! Besichtigung anfragen
Gerät bitte ins Hochformat drehen.
Wie können wir Sie unterstützen?