Teilen

2-Zimmer-Wohnung (WBS 100-140, mit und ohne besonderen Wohnbedarf)

Adresse:
Streitstraße 5,
13587 Berlin, Hakenfelde

Warmmiete
561,00 €
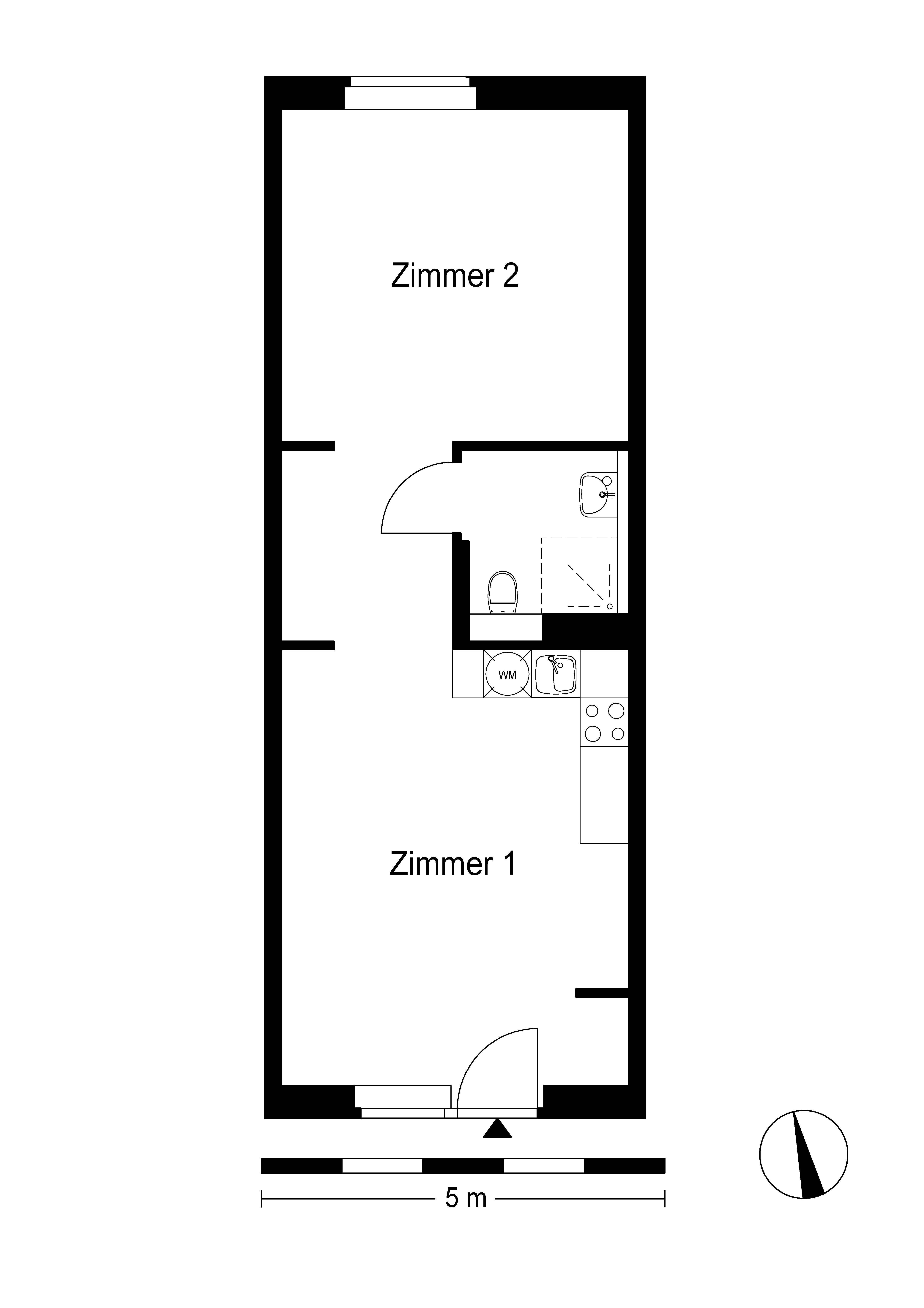
Wohnfläche
51,0 m²
Zimmer
2
Bezugsfrei
ab sofort

WBS erforderlich!

Für diese Wohnung wird ein Wohnberechtigungsschein (WBS) benötigt. Mehr dazu erfahren Sie auf unserer Service-Seite.

Mehr zum WBS

Merkmale

  • WBS erforderlich
  • Bad mit Dusche
  • offene Küche
  • Fußbodenheizung
  • Zentralheizung
  • Aufzug
  • KabelTV-Anschluss
  • Mieterkeller

Objektdetails

Bezugsfrei ab: ab sofort
Etage: 2
Etagenzahl: 5
Zimmer: 2
Fläche: 51,0 m²
Wi-Nr.: 14536.9998

Mietkosten

Kaltmiete: 357,00 €
Nebenkosten: 204,00 €
Warmmiete: 561,00 €
Kaution: 1071,00 €

Energiekennzahlen

Baujahr: 2026
Energieausweistyp: Bedarfsausweis
Heizungsart: keine Angabe
Energiebedarf: 19,00 kWh/m²a
Letzte Sanierung: keine Angabe
Energieeffizienzklasse: A+
Heizmedium: Wärmepumpe

Energieverbrauchskennwert des Gebäudes: 19,00 kWh/m²a
Energieeffizienzklasse: A+

Objektbeschreibung

Zur Wohnung

Willkommen an der Havel! Im grünen Spandau entstehen neue Wohnungen! Gelegen am Wasser in Spandau-Hakenfelde, nur einen Steinwurf vom grünen Stadtrand entfernt und mit einer hervorragenden Anbindung an das Berliner Zentrum, bietet diese Wohnlage die ideale Mischung aus urbanem Leben und ruhiger Umgebung. Dieses Neubauprojekt zeichnet sich durch kompakte Grundrisse und einen hohen Wohnkomfort aus.

In der Umgebung des Haveluferquartiers befinden sich zahlreiche Parks, Spielplätze sowie Einkaufsmöglichkeiten. Außerdem zeichnet sich die Lage durch eine hervorragende Nahversorgung aus. Fußläufig befindet sich die Busstation, mit der Sie in 20 Minuten am S-Bahnhof Spandau sind. Sportvereine und Schulen machen die Gegend besonders attraktiv für Familien. Die gute Infrastruktur und die Nähe zur Natur machen Spandau-Hakenfelde zu einem idealen Wohnort für Menschen, die sowohl die Ruhe als auch das pulsierende Leben der Hauptstadt genießen möchten.

Bitte beachten Sie, dass es sich bei diesem Inserat um eine Musterwohnung handelt. Weitere, real verfügbare Wohnungen können nach der Besichtigung, der Musterwohnung in der App eingesehen werden. Vor Ort erhalten Sie einen Eindruck von der Ausstattung und der Qualität des gesamten Objekts.

Lage

Adresse

Streitstraße 5, 13587 Berlin, Hakenfelde

Entfernung berechnen

Berechnen Sie Distanzen zur Arbeit, zur Kita zu den Freunden einfach mit Google Maps. *

Zu Google Maps
Umgebung erkunden

Erkunden Sie die Nachbarschaft vorab mit Google Street View. *

Zu Google Street View
* Die HOWOGE übernimmt keine Garantie für die Verfügbarkeit oder Richtigkeit der Darstellung.

Provisionsfrei mieten – fair und transparent zum Mietvertrag

Als Mieter:in zahlen Sie für die Vermittlung des Mietvertrags keine Provision – eine Gebühr fällt nur an, wenn Sie selbst eine Wohnungsvermittlung beauftragt haben. Zugleich ist uns wichtig, dass sich alle Interessent:innen von Anfang an gut informiert und fair behandelt fühlen; deshalb gestalten wir unseren Vermietungsprozess klar, transparent und Schritt für Schritt nachvollziehbar.

Geld & Geschenke Wir nehmen kein Geld und Geschenke von Wohnungsinteressenten an. Solche Bestechungsversuche können zum Ausschluss von der Wohnungsvergabe führen.

Kontaktaufnahme Kontakt zu Ihnen nehmen wir ausschließlich via E-Mail, Telefon oder über unsere App "HOWOGE Wohnungssuche" auf. Niemals per WhatsApp oder anderen Messenger-Diensten.

Besichtigungsverbot Käuflich erworbene Besichtigungstermine werden vor Ort nicht zugelassen.

Alle Schritte im Überblick

Kontaktieren Sie uns!

Besichtigung anfragen
Kontaktieren Sie uns! Besichtigung anfragen
Gerät bitte ins Hochformat drehen.
Wie können wir Sie unterstützen?