Teilen

Sonnige 3 Zimmerwohnung sucht Nachmieter

Adresse:
Seehausener Straße 31,
13057 Berlin, Neu-Hohenschönhausen

Warmmiete
1524,68 €
Wohnfläche
80,0 m²
Zimmer
3
Bezugsfrei
01.06.2026

Merkmale

  • Balkon/Loggia
  • offene Küche
  • Fußbodenheizung
  • Zentralheizung
  • Aufzug
  • KabelTV-Anschluss
  • Mieterkeller
  • Abstellraum in der Wohnung

Objektdetails

Bezugsfrei ab: 01.06.2026
Etage: 2
Etagenzahl: 6
Zimmer: 3
Fläche: 80,0 m²
Wi-Nr.: 14591.086

Mietkosten

Kaltmiete: 1240,00 €
Nebenkosten: 284,68 €
Warmmiete: 1524,68 €
Kaution: 3720,00 €

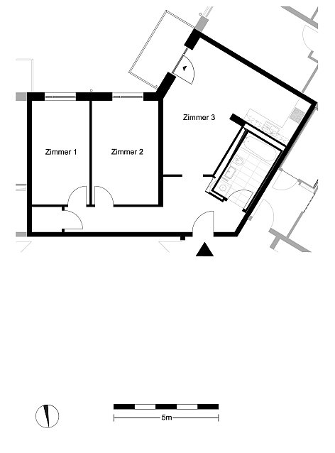
Grundriss

Bad: ca. 5,9 m²
Balkon: ca. 5,0 m²
Abstellraum: ca. 1,8 m²
Zimmer: ca. 16,0 m²
Zimmer: ca. 25,7 m²
Flur: ca. 13,8 m²
Zimmer: ca. 13,7 m²
Küche: ca. 1,0 m²

Energiekennzahlen

Baujahr: 2022
Energieausweistyp: Bedarfsausweis
Heizungsart: keine Angabe
Energiebedarf: 58,00 kWh/m²a
Letzte Sanierung: keine Angabe
Energieeffizienzklasse: B
Heizmedium: Fernwärme

Energieverbrauchskennwert des Gebäudes: 58,00 kWh/m²a
Energieeffizienzklasse: B

Objektbeschreibung

Zur Wohnung

Die Wohnung verfügt über einen besonderen Grundriss, der die Zimmeraufteilung mit dem integrierten Flur zwischen den Zimmern, herausstechen lässt. Dies lässt die Wohnung modern und elegant aussehen. Jeder Raum ist mit einem ansprechenden PVC-Fußboden in Holzoptik ausgestattet und verfügt über eine Fußbodenheizung, welche eine für jedermann individuell angenehme Raumtemperatur garantiert. Zeitlos und modern erscheinen die gespachtelten Wände in der Farbe warmweiß. Auch das Bad erhöht den Wohlfühlfaktor mit großformatigen, stilvollen Fliesen und hochwertiger sanitärer Ausstattung. Zusätzlich garantiert ein Handtuchheizkörper wohlige Wärme an kalten Tagen. Sonniges Wetter können Sie auf dem großzügigen Balkon genießen, welcher direkt an den Wohnraum anschließt. Der integrierte Abstellraum innerhalb der Wohnung ermöglicht das Unterstellen von nicht alltäglich genutzten Dingen, um die Wohnfläche bestmöglich nutzen zu können.

Zum Wohngebäude

Kita, Schule, Einkaufsmöglichkeiten, öffentlicher Personennahverkehr - alles in fußläufiger Nähe

Lage

Adresse

Seehausener Straße 31, 13057 Berlin, Neu-Hohenschönhausen

Entfernung berechnen

Berechnen Sie Distanzen zur Arbeit, zur Kita zu den Freunden einfach mit Google Maps. *

Zu Google Maps
Umgebung erkunden

Erkunden Sie die Nachbarschaft vorab mit Google Street View. *

Zu Google Street View
* Die HOWOGE übernimmt keine Garantie für die Verfügbarkeit oder Richtigkeit der Darstellung.

Provisionsfrei mieten – fair und transparent zum Mietvertrag

Als Mieter:in zahlen Sie für die Vermittlung des Mietvertrags keine Provision – eine Gebühr fällt nur an, wenn Sie selbst eine Wohnungsvermittlung beauftragt haben. Zugleich ist uns wichtig, dass sich alle Interessent:innen von Anfang an gut informiert und fair behandelt fühlen; deshalb gestalten wir unseren Vermietungsprozess klar, transparent und Schritt für Schritt nachvollziehbar.

Geld & Geschenke Wir nehmen kein Geld und Geschenke von Wohnungsinteressenten an. Solche Bestechungsversuche können zum Ausschluss von der Wohnungsvergabe führen.

Kontaktaufnahme Kontakt zu Ihnen nehmen wir ausschließlich via E-Mail, Telefon oder über unsere App "HOWOGE Wohnungssuche" auf. Niemals per WhatsApp oder anderen Messenger-Diensten.

Besichtigungsverbot Käuflich erworbene Besichtigungstermine werden vor Ort nicht zugelassen.

Alle Schritte im Überblick

Kontaktieren Sie uns!

Besichtigung anfragen
Kontaktieren Sie uns! Besichtigung anfragen
Gerät bitte ins Hochformat drehen.
Wie können wir Sie unterstützen?