Teilen

3-Zimmer-Wohnung ohne WBS

Adresse:
Klara-Weyl-Straße 15,
10365 Berlin, Lichtenberg

Warmmiete
1460,00 €
Wohnfläche
77,0 m²
Zimmer
3
Bezugsfrei
01.05.2026

Merkmale

  • Balkon/Loggia
  • Bad mit Badewanne
  • offene Küche
  • Fußbodenheizung
  • Zentralheizung
  • Aufzug
  • KabelTV-Anschluss
  • Mieterkeller
  • Abstellraum in der Wohnung

Objektdetails

Bezugsfrei ab: 01.05.2026
Etage: 2
Etagenzahl: 6
Zimmer: 3
Fläche: 77,0 m²
Wi-Nr.: 14555.336

Mietkosten

Kaltmiete: 1155,00 €
Nebenkosten: 305,00 €
Warmmiete: 1460,00 €
Kaution: 3465,00 €

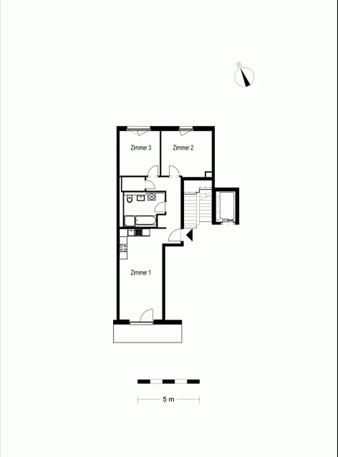
Grundriss

Zimmer: ca. 25,1 m²
Zimmer: ca. 15,1 m²
Zimmer: ca. 12,1 m²
Küche: ca. 1,0 m²
Flur: ca. 9,3 m²
Bad: ca. 8,6 m²
Abstellraum: ca. 2,1 m²
Balkon: ca. 8,1 m²

Energiekennzahlen

Baujahr: 2019
Energieausweistyp: Bedarfsausweis
Heizungsart: keine Angabe
Energiebedarf: 41,20 kWh/m²a
Letzte Sanierung: keine Angabe
Energieeffizienzklasse: A
Heizmedium: Fernwärme

Energieverbrauchskennwert des Gebäudes: 41,20 kWh/m²a
Energieeffizienzklasse: A

Objektbeschreibung

Zur Wohnung

Die Wohnung verfügt über drei Zimmer (zwei Schlafzimmer und ein Wohnzimmer mit offener Küche), einen Balkon, eine Abstellkammer und ein Badezimmer mit Dusche und Badewanne.

Zur Wohnung gehört zudem noch ein separater Mieterkeller.

Im Objekt gibt es diverse Abstellmöglichkeiten für Fahrräder sowie Kfz-Stellplätze auf Anfrage.

Die aktuellen Mieter würden gerne ihre Einbauküche an den Nachmieter übergeben, sofern Interesse daran besteht.

Im Grundriss wird das Mobiliar exemplarisch dargestellt. Flächenangaben können abweichen.

Zum Wohngebäude

Das Haus wurde auf dem Gelände des ehemaligen Kinderkrankenhauses gebaut.

Lage

Adresse

Klara-Weyl-Straße 15, 10365 Berlin, Lichtenberg

Entfernung berechnen

Berechnen Sie Distanzen zur Arbeit, zur Kita zu den Freunden einfach mit Google Maps. *

Zu Google Maps
Umgebung erkunden

Erkunden Sie die Nachbarschaft vorab mit Google Street View. *

Zu Google Street View
* Die HOWOGE übernimmt keine Garantie für die Verfügbarkeit oder Richtigkeit der Darstellung.

Provisionsfrei mieten – fair und transparent zum Mietvertrag

Als Mieter:in zahlen Sie für die Vermittlung des Mietvertrags keine Provision – eine Gebühr fällt nur an, wenn Sie selbst eine Wohnungsvermittlung beauftragt haben. Zugleich ist uns wichtig, dass sich alle Interessent:innen von Anfang an gut informiert und fair behandelt fühlen; deshalb gestalten wir unseren Vermietungsprozess klar, transparent und Schritt für Schritt nachvollziehbar.

Geld & Geschenke Wir nehmen kein Geld und Geschenke von Wohnungsinteressenten an. Solche Bestechungsversuche können zum Ausschluss von der Wohnungsvergabe führen.

Kontaktaufnahme Kontakt zu Ihnen nehmen wir ausschließlich via E-Mail, Telefon oder über unsere App "HOWOGE Wohnungssuche" auf. Niemals per WhatsApp oder anderen Messenger-Diensten.

Besichtigungsverbot Käuflich erworbene Besichtigungstermine werden vor Ort nicht zugelassen.

Alle Schritte im Überblick

Kontaktieren Sie uns!

Besichtigung anfragen
Kontaktieren Sie uns! Besichtigung anfragen
Gerät bitte ins Hochformat drehen.
Wie können wir Sie unterstützen?