Teilen

Wohnen im Neubau - ab sofort verfügbar

Adresse:
Konrad-Wolf-Straße 79,
13055 Berlin, Alt-Hohenschönhausen

Warmmiete
876,00 €
Wohnfläche
42,0 m²
Zimmer
2
Bezugsfrei
ab sofort

Merkmale

  • Terrasse
  • Bad mit Dusche
  • offene Küche
  • Zentralheizung
  • Aufzug
  • KabelTV-Anschluss
  • barrierefrei

Objektdetails

Bezugsfrei ab: ab sofort
Etage: 1
Etagenzahl: 4
Zimmer: 2
Fläche: 42,0 m²
Wi-Nr.: 20596.050

Mietkosten

Kaltmiete: 714,00 €
Nebenkosten: 162,00 €
Warmmiete: 876,00 €
Kaution: 2142,00 €

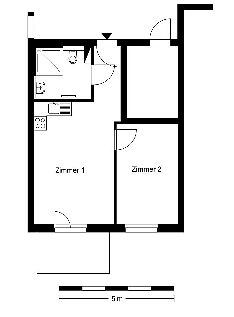
Grundriss

Bad: ca. 5,3 m²
Zimmer: ca. 11,9 m²
Zimmer: ca. 16,0 m²
Flur: ca. 2,9 m²
Freisitz: ca. 2,9 m²
Küche: ca. 3,0 m²

Energiekennzahlen

Baujahr: 2015
Energieausweistyp: Bedarfsausweis
Heizungsart: keine Angabe
Energiebedarf: 61,00 kWh/m²a
Letzte Sanierung: keine Angabe
Energieeffizienzklasse: B
Heizmedium: Fernwärme

Energieverbrauchskennwert des Gebäudes: 61,00 kWh/m²a
Energieeffizienzklasse: B

Objektbeschreibung

Zur Wohnung

Schöne 2-Zimmer Wohnung im Neubau u.a. mit Terrasse, Bad mit Dusche, offene Küche mit Fenster und Zentralheizung sucht ab sofort neue Mieter:innen. Ansehen lohnt sich! Ein Aufzug ist im Objekt vorhanden. Für die Anmietung der Wohnung ist kein WBS erforderlich. Im Grundriss wird das Mobiliar exemplarisch dargestellt. Flächenangaben können abweichen.

Neubau, Baujahr 2015

Zum Wohngebäude

Unser Objekt liegt im Berliner Bezirk Lichtenberg im Ortsteil Alt-Hohenschönhausen und bietet eine gute Anbindung an den ÖPNV mit Anbindung an die M5 und 27 sowie Buslinien im nahen Umfeld. Einkaufsmöglichkeiten sind fußläufig zu finden, aber auch in wenigen Minuten mit dem Auto zu erreichen. Das Ärztehaus in der Reichenberger Straße ist zügig erreichbar, es befinden sich aber auch im direkten Umfeld einige Ärzte.

Lage

Adresse

Konrad-Wolf-Straße 79, 13055 Berlin, Alt-Hohenschönhausen

Entfernung berechnen

Berechnen Sie Distanzen zur Arbeit, zur Kita zu den Freunden einfach mit Google Maps. *

Zu Google Maps
Umgebung erkunden

Erkunden Sie die Nachbarschaft vorab mit Google Street View. *

Zu Google Street View
* Die HOWOGE übernimmt keine Garantie für die Verfügbarkeit oder Richtigkeit der Darstellung.

Provisionsfrei mieten – fair und transparent zum Mietvertrag

Als Mieter:in zahlen Sie für die Vermittlung des Mietvertrags keine Provision – eine Gebühr fällt nur an, wenn Sie selbst eine Wohnungsvermittlung beauftragt haben. Zugleich ist uns wichtig, dass sich alle Interessent:innen von Anfang an gut informiert und fair behandelt fühlen; deshalb gestalten wir unseren Vermietungsprozess klar, transparent und Schritt für Schritt nachvollziehbar.

Geld & Geschenke Wir nehmen kein Geld und Geschenke von Wohnungsinteressenten an. Solche Bestechungsversuche können zum Ausschluss von der Wohnungsvergabe führen.

Kontaktaufnahme Kontakt zu Ihnen nehmen wir ausschließlich via E-Mail, Telefon oder über unsere App "HOWOGE Wohnungssuche" auf. Niemals per WhatsApp oder anderen Messenger-Diensten.

Besichtigungsverbot Käuflich erworbene Besichtigungstermine werden vor Ort nicht zugelassen.

Alle Schritte im Überblick

Kontaktieren Sie uns!

Besichtigung anfragen
Kontaktieren Sie uns! Besichtigung anfragen
Gerät bitte ins Hochformat drehen.
Wie können wir Sie unterstützen?