Teilen

Wohnen mit WBS 160/180 am grünen Stadtrand von Berlin

Adresse:
Welsestraße 1,
13057 Berlin, Neu-Hohenschönhausen

Warmmiete
904,79 €
Wohnfläche
74,0 m²
Zimmer
3
Bezugsfrei
ab sofort

Merkmale

  • Balkon/Loggia
  • Bad mit Dusche
  • offene Küche
  • Linoleum Fußboden
  • Fußbodenheizung
  • Zentralheizung
  • Aufzug
  • KabelTV-Anschluss
  • barrierefrei
  • Mieterkeller

Objektdetails

Bezugsfrei ab: ab sofort
Etage: 4
Etagenzahl: 6
Zimmer: 3
Fläche: 74,0 m²
Wi-Nr.: 13579.030

Mietkosten

Kaltmiete: 621,60 €
Nebenkosten: 283,19 €
Warmmiete: 904,79 €
Kaution: 1864,80 €

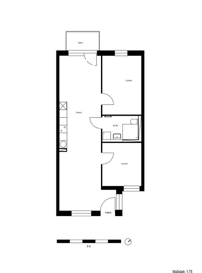
Grundriss

Bad: ca. 5,5 m²
Flur: ca. 1,9 m²
Balkon: ca. 4,1 m²
Zimmer: ca. 14,2 m²
Zimmer: ca. 38,7 m²
Küche: ca. 1,0 m²
Zimmer: ca. 10,3 m²

Energiekennzahlen

Baujahr: 2023
Energieausweistyp: Bedarfsausweis
Heizungsart: keine Angabe
Energiebedarf: 39,40 kWh/m²a
Letzte Sanierung: keine Angabe
Energieeffizienzklasse: A
Heizmedium: Fernwärme

Energieverbrauchskennwert des Gebäudes: 39,40 kWh/m²a
Energieeffizienzklasse: A

Objektbeschreibung

Zur Wohnung

Im Grundriss wird das Mobiliar exemplarisch dargestellt. Flächenangaben können abweichen.
Die Wohnung verfügt über 3 helle und gut geschnittene Räume. Ins Wohnzimmer integriert ist die Nassstrecke, die ausreichend Platz für Küchenschränke und Elektrogeräte bietet. Vom Wohnzimmer aus erreichen Sie auch den geräumigen Balkon. Abgerundet wird die Wohnung durch ein modernes Bad.

Für die Anmietung der Wohnung ist ein amtlicher WBS 160 oder 180 für einen 3 Personenhaushalt zwingend erforderlich.

Aufzug vorhanden.
Es handelt sich um ein neu errichtetes Gebäude (Baujahr 2023).

Zum Wohngebäude

Diverse Geschäfte für den täglichen Bedarf befinden sich in unmittelbarer Nähe. An den öffentlichen Nahverkehr sind Sie mit Tram, Bus sowie S- und Regionalbahn gut angebunden. Unser Objekt liegt im Berliner Bezirk Neu-Hohenschönhausen. Das Linden-Center bietet eine große Vielfalt an Einkaufsmöglichkeiten, liegt direkt am Prerower Platz und ist fußläufig in ca. 20 Minuten oder auch gut mit dem Bus oder der Tram erreichbar.

Lage

Adresse

Welsestraße 1, 13057 Berlin, Neu-Hohenschönhausen

Entfernung berechnen

Berechnen Sie Distanzen zur Arbeit, zur Kita zu den Freunden einfach mit Google Maps. *

Zu Google Maps
Umgebung erkunden

Erkunden Sie die Nachbarschaft vorab mit Google Street View. *

Zu Google Street View
* Die HOWOGE übernimmt keine Garantie für die Verfügbarkeit oder Richtigkeit der Darstellung.

Provisionsfrei mieten – fair und transparent zum Mietvertrag

Als Mieter:in zahlen Sie für die Vermittlung des Mietvertrags keine Provision – eine Gebühr fällt nur an, wenn Sie selbst eine Wohnungsvermittlung beauftragt haben. Zugleich ist uns wichtig, dass sich alle Interessent:innen von Anfang an gut informiert und fair behandelt fühlen; deshalb gestalten wir unseren Vermietungsprozess klar, transparent und Schritt für Schritt nachvollziehbar.

Geld & Geschenke Wir nehmen kein Geld und Geschenke von Wohnungsinteressenten an. Solche Bestechungsversuche können zum Ausschluss von der Wohnungsvergabe führen.

Kontaktaufnahme Kontakt zu Ihnen nehmen wir ausschließlich via E-Mail, Telefon oder über unsere App "HOWOGE Wohnungssuche" auf. Niemals per WhatsApp oder anderen Messenger-Diensten.

Besichtigungsverbot Käuflich erworbene Besichtigungstermine werden vor Ort nicht zugelassen.

Alle Schritte im Überblick

Kontaktieren Sie uns!

Besichtigung anfragen
Kontaktieren Sie uns! Besichtigung anfragen
Gerät bitte ins Hochformat drehen.
Wie können wir Sie unterstützen?