Teilen

4-Zimmer Wohnung, Doppelparker-Anmietung(Tiefgarage) möglich für 60,00(monatlich).

Adresse:
Konrad-Wolf-Straße 12,
13055 Berlin, Alt-Hohenschönhausen

Warmmiete
1905,50 €
Wohnfläche
103,0 m²
Zimmer
4
Bezugsfrei
ab sofort

Merkmale

  • Bad mit Dusche
  • offene Küche
  • Zentralheizung
  • Aufzug
  • KabelTV-Anschluss
  • Mieterkeller
  • Abstellraum in der Wohnung

Objektdetails

Bezugsfrei ab: ab sofort
Etage: 2
Etagenzahl: 5
Zimmer: 4
Fläche: 103,0 m²
Wi-Nr.: 14005.239

Mietkosten

Kaltmiete: 1545,00 €
Nebenkosten: 360,50 €
Warmmiete: 1905,50 €
Kaution: 4635,00 €

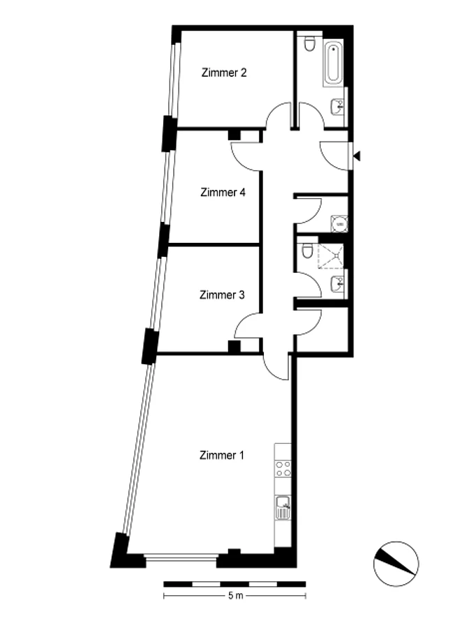
Grundriss

Küche: ca. 1,0 m²
Zimmer: ca. 35,7 m²
Zimmer: ca. 13,8 m²
Zimmer: ca. 12,6 m²
Zimmer: ca. 12,0 m²
Flur: ca. 12,9 m²
Bad: ca. 5,8 m²
Bad: ca. 3,7 m²
Abstellraum: ca. 2,9 m²
Abstellraum: ca. 2,4 m²

Energiekennzahlen

Baujahr: 1996
Energieausweistyp: Bedarfsausweis
Heizungsart: keine Angabe
Energiebedarf: 80,68 kWh/m²a
Letzte Sanierung: keine Angabe
Energieeffizienzklasse: C
Heizmedium: Fernwärme

Energieverbrauchskennwert des Gebäudes: 80,68 kWh/m²a
Energieeffizienzklasse: C

Objektbeschreibung

Zur Wohnung

Im Grundriss wird das Mobiliar exemplarisch dargestellt. Flächenangaben können abweichen.
Bei der hier angebotenen Wohnung handelt es sich um eine neu modernisierte 4-Zimmer Wohnung ohne Balkon, gefliestem Wannenbad, 1 WC und 1 Kammer, sowie einem Mieterkeller.

5-Geschossser-mit Aufzug

Zum Wohngebäude

Unser Objekt liegt im Berliner Bezirk Lichtenberg im Ortsteil Alt-Hohenschönhausen und bietet eine gute Anbindung an den ÖPNV mit der direkten Anbindung an die Tram M5, 27 und M17 sowie den Buslinien 256 und 294. Einkaufsmöglichkeiten sind fußläufig zu erreichen. Ebenso befinden sich im Umfeld Ärzte, Schulen und Kindergärten.

Lage

Adresse

Konrad-Wolf-Straße 12, 13055 Berlin, Alt-Hohenschönhausen

Entfernung berechnen

Berechnen Sie Distanzen zur Arbeit, zur Kita zu den Freunden einfach mit Google Maps. *

Zu Google Maps
Umgebung erkunden

Erkunden Sie die Nachbarschaft vorab mit Google Street View. *

Zu Google Street View
* Die HOWOGE übernimmt keine Garantie für die Verfügbarkeit oder Richtigkeit der Darstellung.

Provisionsfrei mieten – fair und transparent zum Mietvertrag

Als Mieter:in zahlen Sie für die Vermittlung des Mietvertrags keine Provision – eine Gebühr fällt nur an, wenn Sie selbst eine Wohnungsvermittlung beauftragt haben. Zugleich ist uns wichtig, dass sich alle Interessent:innen von Anfang an gut informiert und fair behandelt fühlen; deshalb gestalten wir unseren Vermietungsprozess klar, transparent und Schritt für Schritt nachvollziehbar.

Geld & Geschenke Wir nehmen kein Geld und Geschenke von Wohnungsinteressenten an. Solche Bestechungsversuche können zum Ausschluss von der Wohnungsvergabe führen.

Kontaktaufnahme Kontakt zu Ihnen nehmen wir ausschließlich via E-Mail, Telefon oder über unsere App "HOWOGE Wohnungssuche" auf. Niemals per WhatsApp oder anderen Messenger-Diensten.

Besichtigungsverbot Käuflich erworbene Besichtigungstermine werden vor Ort nicht zugelassen.

Alle Schritte im Überblick

Kontaktieren Sie uns!

Besichtigung anfragen
Kontaktieren Sie uns! Besichtigung anfragen
Wie können wir Sie unterstützen?