Teilen

Hell geschnittene Wohnung für eine Familie

Adresse:
Barther Straße 82,
13051 Berlin, Neu-Hohenschönhausen

Warmmiete
765,29 €
Wohnfläche
70,7 m²
Zimmer
3
Bezugsfrei
ab sofort

WBS erforderlich!

Für diese Wohnung wird ein Wohnberechtigungsschein (WBS) benötigt. Mehr dazu erfahren Sie auf unserer Service-Seite.

Mehr zum WBS

Merkmale

  • WBS erforderlich
  • Balkon/Loggia
  • Zentralheizung
  • Aufzug
  • KabelTV-Anschluss

Objektdetails

Bezugsfrei ab: ab sofort
Etage: 5
Etagenzahl: 11
Zimmer: 3
Fläche: 70,7 m²
Wi-Nr.: 12474.044

Mietkosten

Kaltmiete: 483,50 €
Nebenkosten: 281,79 €
Warmmiete: 765,29 €
Kaution: 1450,50 €

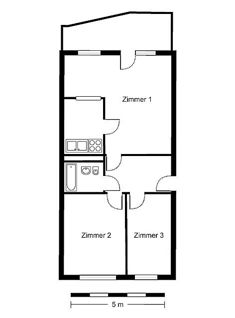
Grundriss

Loggia: ca. 3,9 m²
Bad: ca. 3,4 m²
Flur: ca. 7,4 m²
Küche: ca. 6,5 m²
Zimmer: ca. 24,3 m²
Zimmer: ca. 14,7 m²
Zimmer: ca. 10,8 m²

Energiekennzahlen

Baujahr: 1985
Energieausweistyp: Bedarfsausweis
Heizungsart: keine Angabe
Energiebedarf: 88,75 kWh/m²a
Letzte Sanierung: keine Angabe
Energieeffizienzklasse: C
Heizmedium: Fernwärme

Energieverbrauchskennwert des Gebäudes: 88,75 kWh/m²a
Energieeffizienzklasse: C

Objektbeschreibung

Zur Wohnung

innenliegendes gefliestes Wannenbad, Küche mit Fenster, mit Balkon

Im Grundriss wird das Mobiliar exemplarisch dargestellt. Flächenangaben können abweichen.

sanierter Plattenbau

Zum Wohngebäude

Für die Anmietung der Wohnung ist ein WBS ab 160 für x Personenhaushalt erforderlich. Durch die einkommensorientierte Vermietung (Einkommensgrenze 140,01 % - 220%) könnten Sie auch ohne amtlichen WBS zur Anmietung berechtigt sein, wenn neben dem Haushaltseinkommen auch die Personenanzahl zur Wohnungsgröße passt. Unter der Homepage https://ssl.stadtentwicklung.berlin.de/wohnen/wbs/wbsformular.shtml können Sie Ihre WBS-Kennzahl (das Verhältnis von Ihrem Einkommen zur Einkommensgrenze) ermitteln.
Bitte pflegen Sie die WBS-Kennzahl anschließend in Ihren persönlichen Daten.

Lage

Adresse

Barther Straße 82, 13051 Berlin, Neu-Hohenschönhausen

Entfernung berechnen

Berechnen Sie Distanzen zur Arbeit, zur Kita zu den Freunden einfach mit Google Maps. *

Zu Google Maps
Umgebung erkunden

Erkunden Sie die Nachbarschaft vorab mit Google Street View. *

Zu Google Street View
* Die HOWOGE übernimmt keine Garantie für die Verfügbarkeit oder Richtigkeit der Darstellung.

Provisionsfrei mieten – fair und transparent zum Mietvertrag

Als Mieter:in zahlen Sie für die Vermittlung des Mietvertrags keine Provision – eine Gebühr fällt nur an, wenn Sie selbst eine Wohnungsvermittlung beauftragt haben. Zugleich ist uns wichtig, dass sich alle Interessent:innen von Anfang an gut informiert und fair behandelt fühlen; deshalb gestalten wir unseren Vermietungsprozess klar, transparent und Schritt für Schritt nachvollziehbar.

Geld & Geschenke Wir nehmen kein Geld und Geschenke von Wohnungsinteressenten an. Solche Bestechungsversuche können zum Ausschluss von der Wohnungsvergabe führen.

Kontaktaufnahme Kontakt zu Ihnen nehmen wir ausschließlich via E-Mail, Telefon oder über unsere App "HOWOGE Wohnungssuche" auf. Niemals per WhatsApp oder anderen Messenger-Diensten.

Besichtigungsverbot Käuflich erworbene Besichtigungstermine werden vor Ort nicht zugelassen.

Alle Schritte im Überblick

Kontaktieren Sie uns!

Besichtigung anfragen
Kontaktieren Sie uns! Besichtigung anfragen
Gerät bitte ins Hochformat drehen.
Wie können wir Sie unterstützen?