Teilen

Angebot ausschließlich für Bedarfsgruppe mobil eingeschränkt mit GdB oder Pflegebedarf

Adresse:
Georg-Benjamin-Straße 39,
13125 Berlin, Buch

Warmmiete
806,04 €
Wohnfläche
62,3 m²
Zimmer
2
Bezugsfrei
ab sofort

Merkmale

  • Balkon/Loggia
  • Bad mit Dusche
  • Zentralheizung

Objektdetails

Bezugsfrei ab: ab sofort
Etage: 1
Etagenzahl: 5
Zimmer: 2
Fläche: 62,3 m²
Wi-Nr.: 24017.031

Mietkosten

Kaltmiete: 581,04 €
Nebenkosten: 225,00 €
Warmmiete: 806,04 €
Kaution: 1743,12 €

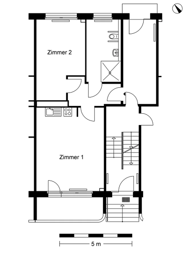
Grundriss

Zimmer: ca. 16,6 m²
Loggia: ca. 3,6 m²
Zimmer: ca. 25,1 m²
Küche: ca. 1,8 m²
Bad: ca. 10,3 m²
Flur: ca. 6,0 m²

Energiekennzahlen

Baujahr: 1974
Energieausweistyp: Bedarfsausweis
Heizungsart: keine Angabe
Energiebedarf: 70,00 kWh/m²a
Letzte Sanierung: keine Angabe
Energieeffizienzklasse: B
Heizmedium: Fernwärme

Energieverbrauchskennwert des Gebäudes: 70,00 kWh/m²a
Energieeffizienzklasse: B

Objektbeschreibung

Zur Wohnung

Im Grundriss wird das Mobiliar exemplarisch dargestellt. Flächenangaben können abweichen.

Lage

Adresse

Georg-Benjamin-Straße 39, 13125 Berlin, Buch

Entfernung berechnen

Berechnen Sie Distanzen zur Arbeit, zur Kita zu den Freunden einfach mit Google Maps. *

Zu Google Maps
Umgebung erkunden

Erkunden Sie die Nachbarschaft vorab mit Google Street View. *

Zu Google Street View
* Die HOWOGE übernimmt keine Garantie für die Verfügbarkeit oder Richtigkeit der Darstellung.

Provisionsfrei mieten – fair und transparent zum Mietvertrag

Als Mieter:in zahlen Sie für die Vermittlung des Mietvertrags keine Provision – eine Gebühr fällt nur an, wenn Sie selbst eine Wohnungsvermittlung beauftragt haben. Zugleich ist uns wichtig, dass sich alle Interessent:innen von Anfang an gut informiert und fair behandelt fühlen; deshalb gestalten wir unseren Vermietungsprozess klar, transparent und Schritt für Schritt nachvollziehbar.

Geld & Geschenke Wir nehmen kein Geld und Geschenke von Wohnungsinteressenten an. Solche Bestechungsversuche können zum Ausschluss von der Wohnungsvergabe führen.

Kontaktaufnahme Kontakt zu Ihnen nehmen wir ausschließlich via E-Mail, Telefon oder über unsere App "HOWOGE Wohnungssuche" auf. Niemals per WhatsApp oder anderen Messenger-Diensten.

Besichtigungsverbot Käuflich erworbene Besichtigungstermine werden vor Ort nicht zugelassen.

Alle Schritte im Überblick

Kontaktieren Sie uns!

Besichtigung anfragen
Kontaktieren Sie uns! Besichtigung anfragen
Wie können wir Sie unterstützen?