Teilen

Geräumige Wohnung mit guten Anbindungen an die Öffentlichen Verkehrsmittel

Adresse:
Frankfurter Allee 218,
10365 Berlin, Lichtenberg

Warmmiete
1896,60 €
Wohnfläche
81,0 m²
Zimmer
3
Bezugsfrei
ab sofort

Merkmale

  • Balkon/Loggia
  • Bad mit Badewanne
  • offene Küche
  • Fußbodenheizung
  • Zentralheizung
  • Aufzug
  • KabelTV-Anschluss
  • Mieterkeller

Objektdetails

Bezugsfrei ab: ab sofort
Etage: 19
Etagenzahl: 22
Zimmer: 3
Fläche: 81,0 m²
Wi-Nr.: 14563.357

Mietkosten

Kaltmiete: 1458,00 €
Nebenkosten: 438,60 €
Warmmiete: 1896,60 €
Kaution: 4374,00 €

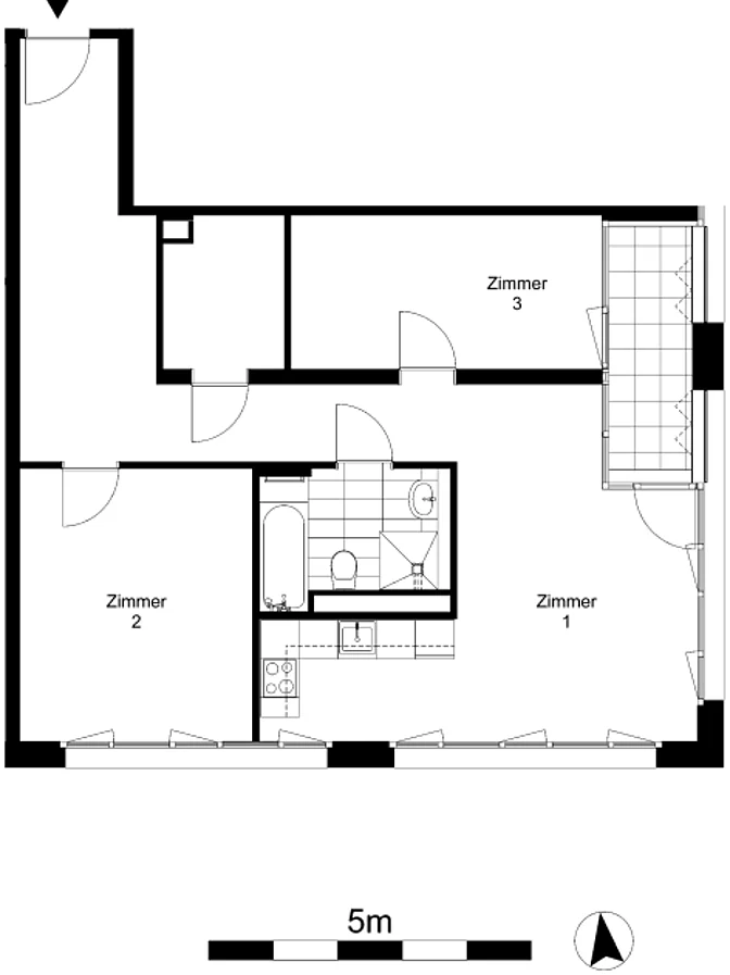
Grundriss

Loggia: ca. 4,9 m²
Abstellraum: ca. 4,2 m²
Bad: ca. 5,7 m²
Flur: ca. 17,8 m²
Küche: ca. 1,0 m²
Zimmer: ca. 11,5 m²
Zimmer: ca. 15,2 m²
Zimmer: ca. 22,9 m²

Energiekennzahlen

Baujahr: 2022
Energieausweistyp: Bedarfsausweis
Heizungsart: keine Angabe
Energiebedarf: 37,00 kWh/m²a
Letzte Sanierung: keine Angabe
Energieeffizienzklasse: A
Heizmedium: Fernwärme

Energieverbrauchskennwert des Gebäudes: 37,00 kWh/m²a
Energieeffizienzklasse: A

Objektbeschreibung

Zur Wohnung

Im Grundriss wird das Mobiliar exemplarisch dargestellt. Flächenangaben können abweichen.

Die Wohnung hat eine Loggia, eine Abstellkammer und einen Keller. Flächenangaben können abweichen. Beispielsfoto ähnlich dem Bestand

Das Haus verfügt über einen Concierge, eine Videoanlage, drei Fahrstühle und einen ebenerdigen Eingangsbereich. Kinderwagenraum und Fahrradraum stehen zur Verfügung.

Zum Wohngebäude

Diese Wohnanlage liegt im innerstädtischen Bereich und verfügt über gute ÖPNV- Anbindung. Verschiedene Supermärkte sowie ein Baumarkt sind fußläufig erreichbar

Unser Vermietungsprozess

Uns ist wichtig, dass sich alle Interessent:innen von Anfang an gut informiert und fair behandelt fühlen. Deshalb gestalten wir unseren Vermietungsprozess klar, transparent und nachvollziehbar - Schritt für Schritt.

Alle Schritte im Überblick

Lage

Adresse

Frankfurter Allee 218, 10365 Berlin, Lichtenberg

Entfernung berechnen

Berechnen Sie Distanzen zur Arbeit, zur Kita zu den Freunden einfach mit Google Maps. *

Zu Google Maps
Umgebung erkunden

Erkunden Sie die Nachbarschaft vorab mit Google Street View. *

Zu Google Street View
* Die HOWOGE übernimmt keine Garantie für die Verfügbarkeit oder Richtigkeit der Darstellung.

Kontaktieren Sie uns!

Besichtigung vereinbaren
Kontaktieren Sie uns! Besichtigung vereinbaren
Wie können wir Sie unterstützen?